Videoprezentace

Popis

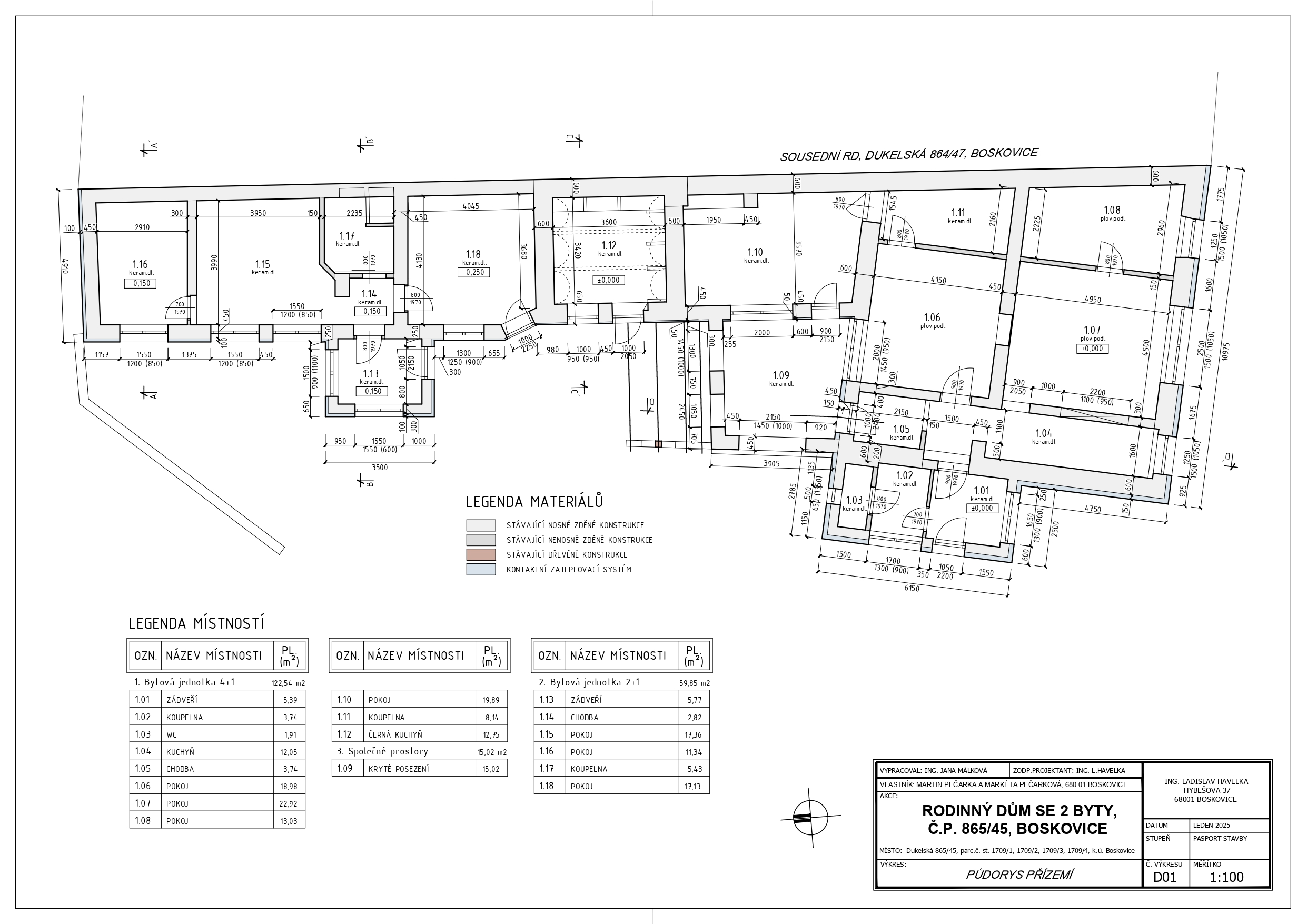
Nově nabízím nemovitost v Boskovicích, která je rozdělena na dvě samostatné bytové jednotky. Nyní slouží jako pension.
První bytová jednotka o dispozici 4+1 dosahuje celkové plochy 122,54 m2. Zahrnuje zádveří (5,39 m2), koupelnu (3,74 m2), WC (1,91 m2), kuchyň (12,05 m2), chodbu (3,74 m2), dále pak čtyři pokoje s plochami 18,98 m2, 22,92 m2, 13,03 m2 a 19,89 m2, a druhou koupelnu (8,14 m2). V bytě naleznete zánovní kuchyňskou linku s indukční varnou deskou, zabudovanou troubou, myčku a lednici. V obývacím pokoji je rozkládací gauč, jídelní stůl a televize. V menším pokoji jsou dvě samostatné postele z masivu a pohovka, kterou je možné rozložit. Ve větším pokoji je manželská postel z masivu, dětská postýlka a jednolůžková postel z masivu.
Druhá bytová jednotka o dispozici 2+1 má celkovou plochu 59,85 m2. Je tvořena zádveřím (5,77 m2), chodbou (2,82 m2), třemi pokoji (17,36 m2, 11,34 m2 a 17,13 m2) a koupelnou (5,43 m2). V kuchyni se nachází nová kuchyňská linka s indukční varnou deskou, zabudovanou troubou a lednicí. V kuchyni je také krb na dřevo. V menším pokoji jsou dvě malé postele z masivu. Ve větším pokoji je manželská postel, která je také z masivu a skříňka k uložení věcí. V koupelně je toaleta a sprchový kout.
K domu náleží i společné prostory konkrétně Černá kuchyň o velikosti 12,75 m2 a Kryté posezení o ploše 15,02 m2.
Díky své dispozici je nemovitost vhodná pro rodinné bydlení, ale také jako investice. V současné době nemovitost slouží jako penzion, který má velice dobré hodnocení. Navíc se nachází v Boskovicích, kde naleznete veškerou občanskou vybavenost školy, zdravotnická zařízení a další služby. Z Boskovic je také dobrá dopravní dostupnost do Blanska či Brna. V domě je také prostorná půda, kde je možné vybudovat další byty. U domu je vinný sklep. U domu je také parkovací stání, které je za bránou s dálkovým ovládáním. Na nádvoří je termální sud, který je vytápěný dřevem. Pro děti jsou na zahradě houpačky, skluzavka a pískoviště. Přední část domu prošla rekonstrukcí v roce 2015. Zadní část domu, včetně nové kuchyňské linky, je z roku 2020. Dům je vytápěný plynovým kotlem. V domě je plovoucí podlaha a keramická dlažba.
Nemovitost je vhodná pro dvě a více rodin. V podkroví je možné vybudovat další bytovou jednotku.
Zaujala vás tato nemovitost? Pokud ano, neváhejte mě kontaktovat. Ráda zodpovím všechny vaše dotazy. Těším se, Hana Ožovldíková.

Podrobnosti

  • Číslo zakázky 11792
  • Cena 10,900,000 Kč
  • Typ nemovitosti
  • Status
  • Zastavěna plo. 202 m2
  • Celková plo. 847 m2
  • Vlastnictví Osobní
  • Umístění v obci Okraj obce
  • Konstrukce Cihlová
  • Stav Po rekonstrukci

Compare